1830 CORANTIJNSTRAAT LEIDEN
NIEUWBOUW 176 APPARTEMENTEN

Drie portiekflats van Portaal aan de Corantijn- en Paramaribostraat in Leiden Noord worden gesloopt. Een kans op deze locatie een nieuwe woonbuurt te realiseren, met een prettige menselijke opzet en volop ruimte voor alledaags contact. Waarbij de verdichting van de locatie, van 88 naar 176 appartementen, de mogelijkheid geeft prettiger buitenruimtes te maken en natuurlijke routes vorm te geven. En uiteraard comfortabele, duurzame en kwalitatieve nieuwe woningen worden toegevoegd, voor een diversiteit aan huishoudens.

Een fijne buurt begint bij een goed stedenbouwkundig plan. Waarbij de gebouwen de coulissen vormen van prettige ruimtes, met een menselijke maat en differentiatie in kwaliteit en gebruik.
Voortbordurend op het stedenbouwkundig erfgoed hebben we voor de Corantijnstraat een rationele verkaveling ontworpen, opgebouwd uit geschakelde stroken, zo verschoven dat de locatie open en doorwaadbaar blijft. Deze nieuwe stedenbouwkundige opzet vormt op een natuurlijke manier ruimtes en routes, en geeft zo vorm aan een verschillende territoria.

De hoogte van de gebouwen loopt van 4 naar 6 verdiepingen en sluit daarmee aan bij de omgeving.

Dwars over de locatie komt een nieuw autovrij woonstraatje, een langzaamverkeersverbinding vanaf de Corantijnstraat naar het zwembad.

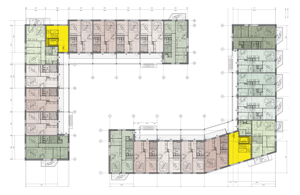
Twee L-vormige gebouwen omsluiten steeds een binnentuin, een meer collectieve ruimte waar alle woningen op gericht zijn en alle galerijen aan grenzen. Deze differentiatie aan open plekken met verschillende kwaliteit leent zich voor verschillend gebruik en nodigt daarmee verschillende doelgroepen uit tot ontmoeting.

Het bepalen van deze verschillende ruimtes leidde vervolgens tot de mogelijke woongebouwen, met een verdichting van de hele locatie van 88 naar 176 woningen. Simpelweg door een meer menselijke buurt te maken.

Voor een prettige buurt is vervolgens de invulling van de begane grond van de gebouwen van groot belang. Daarom zitten hier zoveel mogelijk woningen, naast de entrees en de gemeenschappelijke fietsenbergingen. Hiermee maken we een levendige plint en vergroten we de directe relatie tussen de woningen en de straat.

In alle gebouwen en op elke verdieping zit een differentiatie aan woningen, 2-kamer, 3-kamer en 4-kamer appartementen. De plaatsing van de entree’s in de oksels van de gebouwen zorgt voor korte looplijnen en korte galerijen.

De woningen op de begane grond hebben de voordeur aan de straatzijde, zodat de straten rondom zoveel mogelijk geactiveerd worden. Een drempelzone zorgt voor privacy in huis èn een plek voor ontmoeting voor elke woning.
De bovengelegen woningen hebben hun voordeur juist aan de tuinzijde, waar de galerijen zitten. De woningplattegronden zijn daarom gespiegeld, waarbij de schachten uiteraard wel doorlopen.

Alle plattegronden hebben een doorzon-opzet, zodat de dagelijkse leefruimtes altijd ook gericht zijn op de ontsluitingszijde, en bewoners elkaar makkelijker even zien en gaan herkennen.

Naast de stedenbouwkundige opzet, met doorwaadbare binnentuinen en een verkaveling opgebouwd uit stroken, volgt ook de opbouw van de gevels de logica van de naoorlogse buurt. In de gevels is ten eerste een logische driedeling ter herkennen, waarbij de begane grond afleesbaar is als onderbouw, de verdiepingen daarboven als rustige middenbouw en de gebouwen een duidelijke einde hebben, met staand metselwerk in de toplaag. Vervolgens zijn de afzonderlijke woningen goed afleesbaar, en zorgt de differentiatie in metselwerk en banden voor versterking van de driedeling. Secundair metselwerk vormt een tweede laag, waarnaast de gevelopeningen juist zo eenduidig mogelijk gehouden zijn. De entrees krijgt een extra accent met luifels en naamgeving van de gebouwen.


De verschillende kleuren van het metselwerk versterken de opbouw van de gevel, en vormen samen een rustig geheel. Ook in de galerijgevels komt het metselwerk terug en vormt een rustige laag achter de balustrades.


De Corantijnstraat is in uitvoering! Kijk in dit nieuwsbericht voor foto’s van de bouw.
CREDITS
OPDRACHTGEVER
PORTAAL
AANNEMER
ERA CONTOUR
PROGRAMMA
176 APPARTEMENTEN, SOCIALE HUUR
PROJECTARCHITECTEN
IANTHE MANTINGH EN PATRICK COLLY
STATUS
IN UITVOERING 2025 – 2026
Voor informatie over de verhuur van de appartementen kunt u contact opnemen met Portaal.
ZIJDEKWARTIER ARCHITECTEN