2303 RHODOS- & NAXOSDREEF OVERVECHT
RENOVATIE 80 WONINGEN

Utrecht Overvecht is een wijk waar de leefbaarheid al langere tijd onder druk staat. Het is een doorgangswijk, die slecht scoort op gebieden als veiligheid, criminaliteit, overlast en verwaarlozing. Portaal heeft in de wijk divers bezit, verspreid door de wijk. Een gedeelte hiervan is reeds gerenoveerd, andere plannen zijn in voorbereiding. De focus ligt hierbij op het verbeteren van de technische staat van de gebouwen. Met deze renovaties wordt flink geïnvesteerd, het is alleen de vraag of de goede keuzes gemaakt worden. En of hiermee de doelstellingen uit het ondernemingsplan, ‘bijdragen aan goed samenleven’, voldoende gehaald worden.

Wij zijn gevraagd op een andere manier te kijken naar de wijk en de fysieke mogelijkheden. Kan de technische renovatie gebruikt worden als vliegwiel voor het verbeteren van de leefbaarheid?

Voortbordurend op de resultaten uit deze studie werken we de plannen uit voor renovatie van 80 portieketage-woningen in twee flats aan de Naxosdreef en de Rhodosdreef. De 80 woningen liggen aan 8 portieken in twee flats van vier verdiepingen.

BUITENGEVEL - BESTAAND

BUITENGEVEL - NIEUW
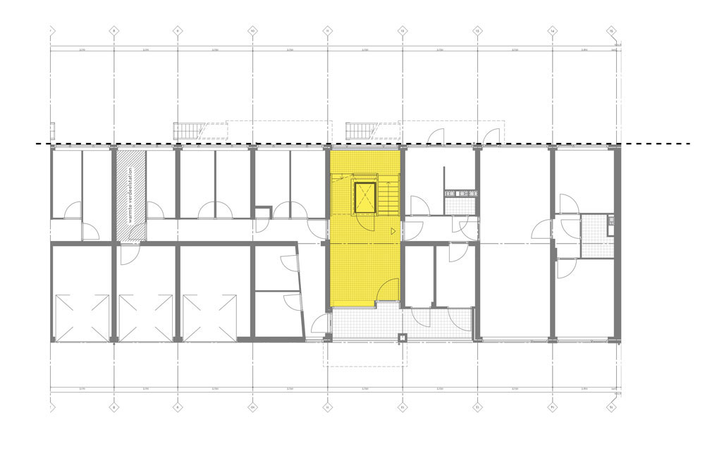
Voor het verbeteren van de leefbaarheid en ruimte geven aan ontmoeting, is de onderste verdieping een belangrijk onderdeel. De huidige begane grond bestaat voor een groot deel uit garageboxen en bergingen, naast een aantal woningen. De gesloten gevel van de dichte functies draagt bij aan het gevoel van onveiligheid. Door meer woningen in de begane grond te maken vergroten we de levendigheid van de plint, wat het gevoel van veiligheid zal helpen en eigenaarschap over de openbare ruimte de ruimte gaat geven. In de twee flats voegen we op deze manier 8 woningen toe in de plint.

BEGANE GROND - BESTAAND

BEGANE GROND - NIEUW
Naast deze woningen maken we de entreehallen ruimer en lichter. Tevens krijgen de hallen een doorsteek naar achter, zodat de groene gebieden aan de achterzijde voor alle bewoners makkelijker bereikbaar worden en hopelijk meer gebruikt zullen gaan worden.

ENTREE - BESTAAND

ENTREE - NIEUW
Ten slotte komt op het dak een volledig nieuwe woonverdieping, zodat op de twee flats, naast de 8 in de plinten, nog 24 woningen op de daken toegevoegd worden. Dit draagt niet alleen bij aan het terugdringen van het woningtekort, maar helpt ook bij het leven op straat en draagvlak van voorzieningen in de buurt.

DOORSNEDE - BESTAAND & NIEUW
De gevel wordt volledig vernieuwd zodat de uitbouw van de begane grond, de drie tussenverdiepingen en de nieuwe toplaag een rustig geheel gaan vormen. Hiermee verbetert direct de duurzaamheid van de gebouwen zodat het geheel naar De Standaard wordt opgehaald.

BINNENGEVEL - BESTAAND

BINNENGEVEL - NIEUW
Naast deze renovatie onderzoeken we de mogelijkheid een nieuw woongebouw te bouwen in de grote ruimte achter de flats. Dit geeft deze ruimte een meer menselijke maat en geeft vorm aan een collectieve tussenruimte, de plek waar buren elkaar makkelijker kunnen ontmoeten en de samenleving verder kan groeien. Dit onderzoek is nog in volle gang, deze plannen zijn nog niet definitief. De afbeelding hieronder toont slechts een schets uit het lopende onderzoek.

In een reportage van de VPRO bezocht Ianthe, samen met Nadia Moussaid, drie van onze projecten, waaronder de Rhodos Naxosdreef. Ze vertelt daar over de kansen hier een prettiger stukje stad te maken en verbinding tussen bewoners te versterken. Kijk voor meer informatie en terugkijken op ons nieuwsitem >>>

CREDITS
OPDRACHTGEVER
PORTAAL UTRECHT
AANNEMER
VAN DILLEN
STATUS
VOORLOPIG ONTWERP GEREED
ZIJDEKWARTIER ARCHITECTEN