1120 5e BINNENVESTGRACHT LEIDEN
VERBOUWING WOONHUIZEN

Aan een van de mooiste grachtjes van Leiden stond een rijtje van drie jaren 80 woningen. Deze gracht was vroeger de ‘achtergracht’, maar is nu een prachtig rustig woonstraatje in het centrum van Leiden. Met ons plan voor de verbouwing van twee van deze huisjes kregen de [groeiende] gezinnen meer leefruimte, waardoor ze altijd aan hun geliefde grachtje kunnen blijven wonen.

De huisjes waren klein, en voegden zich met hun platte daken en functionele architectuur niet naar de locatie. Met ons plan voor de verbouwing van de huisjes, voegden we niet alleen meer woonruimte toe aan de huizen, maar gaven we de huizen ook een meer passende uitstraling, die recht doet aan de unieke locatie in de binnenstad van Leiden. Daarnaast werden de huisjes een stuk duurzamer gemaakt.

Volgend uit een uitgebreide historische en stedenbouwkundige analyse zijn de kaders voor de verbouwing vastgesteld, waaronder de kapvorm, richting en hoogte. Volgens de regels van de straat kreeg huisnummer 13 een dwarskap, huisnummer 14 juist een langskap. Daarnaast is met een kleine sprong in de hoogte het verschil tussen de huisjes vergroot, wat tevens de kleinere korrel van de straat versterkt.


De nieuwe gevels volgen aan de ene kant een rustig en vrij traditionele indeling. De kleur van het metselwerk voegt zich naar de omgeving, de stenen van de twee huisjes zijn familie van elkaar. De bijzondere metselwerkverbanden en verfijnde detaillering geven de huisjes een rijke uitstraling.



Het verbeteren van de duurzaamheid was een belangrijk uitgangspunt bij de verbouwingsplannen. De isolatiewaarde van de gevels is flink omhoog gegaan, waarbij geïsoleerd is met het duurzame isovlas. Zonwering in alle kozijnen houdt de warmte zomers beter buiten, zonnepanelen op de platte delen van de daken wekken nu een groot deel van de energievraag op, terwijl deze wel volledig uit het zicht liggen.

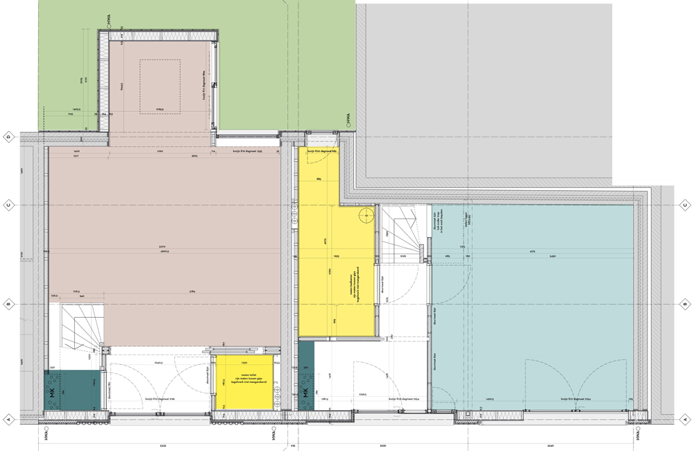
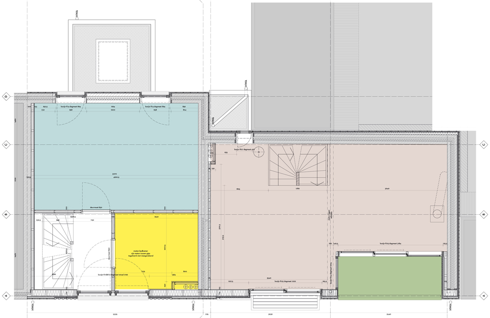
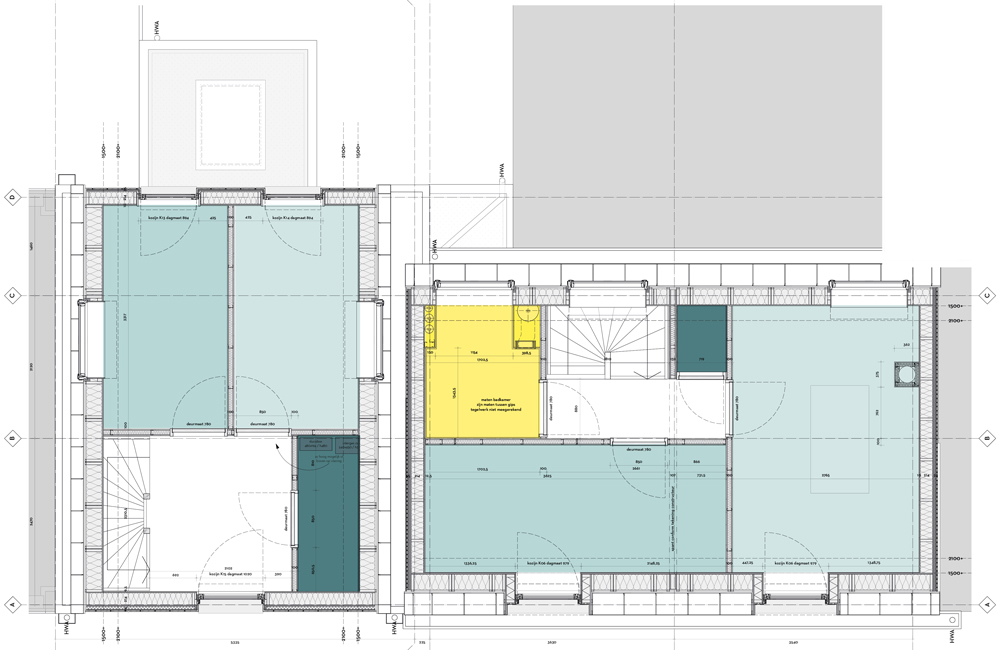
De kleine oppervlaktes van de huisjes vragen om een efficiënte indeling van de woningen. Huisnummer 13 heeft een meer traditionele indeling, met wonen op de begane grond en slapen erboven. Huisnummer 14 heeft juist de woonkamer op de eerste verdieping, waar het uitzicht over de Hortus Botanicus het mooiste is en de privacy in huis wat groter.











CREDITS
OPDRACHTGEVER
PARTICULIER
PROGRAMMA
WONEN
PROJECTARCHITECT
PATRICK COLLY
AANNEMER
VAN DER LEE & VAN DER HAVEN
FOTOGRAFIE
JEROEN MUSCH & ZIJDEKWARTIER ARCHITECTEN
STATUS
OPGELEVERD 2023
ZIJDEKWARTIER ARCHITECTEN