1103 FLUOR SCHUYTVLOT HAARLEM
STUDIE HERBESTEMMING KANTOORGEBOUW

Prominent aan het Spaarne, aan de Schipholweg, staat het kantoorgebouw van Fluor Schuytvlot. In samenwerking met Elan Wonen hebben we een studie gedaan naar mogelijke herbestemming van dit gebouw, om plaats te bieden aan woningen.
Herbestemming van dit gebouw lijkt kansrijk. De locatie heeft kwaliteit, met de ligging aan het Spaarne en het centrum van Haarlem op steenworp afstand. Het betonnen casco van het gebouw heeft een stramienmaat van 6 bij 6 meter en de verdiepingshoogte is ruim. Deze maten lenen zich goed voor woningen. Herbestemmen van dit gebouw lijkt zonder al te veel fratsen mogelijk. Daarnaast zou herbestemming van dit gebouw, aan de rand van de Slachthuisbuurt, een positieve impuls voor de wijk kunnen zijn.

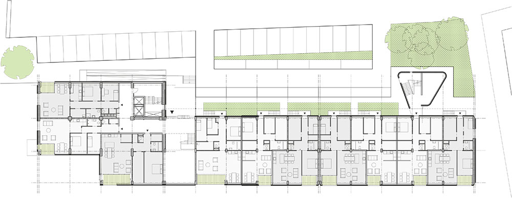
De bestaande structuur van het gebouw en de kwaliteiten van de locatie zijn de uitgangspunten van het voorstel. Het voorstel gaat uit van een volledige invulling met in totaal 36 woningen, 18 in de toren en 18 in de laagbouw.

Parkeren gebeurt gedeeltelijk in de kelder en gedeeltelijk op straat. De woningen op de begane grond liggen 1,60 m verhoogd en worden ontsloten direct vanaf straat. De overige woningen via de entree aan de achterzijde. Alle appartementen hebben als buitenruimte een loggia of een dakterras.


De nieuwe gevel respecteert de oorsprong van het gebouw, gebouwd volgens de principes van de Nieuwe Zakelijkheid. Dat resulteert in een lijnenspel met plastiek waarbij de nadruk zal komen te liggen op de horizontale lijn.
Het metselwerk van de kopgevels vormt een kader om de langsgevels. Binnen dit kader ontstaat een transparante wereld met grote ramen en de buitenruimtes. Hier komt de nieuwe woonfunctie van het gebouw echt tot uitdrukking. De gevel is opgebouwd uit horizontale banden met daartussen gekleurde glazen panelen, die voor een mooi spel van open en gesloten zorgen en veel vrijheid geven aan de invulling.

