1814 DAKWONING LEIDEN
VERBOUWING WOONHUIS
Een dakwoning in het centrum van Leiden, boven de stad en er tegelijk middenin. Het huis dempt de geluiden van de stad en opent zich naar het nieuwe erf op het dak van het magazijn. Geborgen én open, met de stad in je rug en de blik naar buiten.
Met de dakwoning hebben we de Rijnlandse Architectuurprijs 2021 gewonnen! Kijk hier voor meer informatie over de prijs, het juryrapport en beelden van de prijsuitreiking.

In het oude huisje kwamen de geluiden van de stad te dichtbij. Het weer was binnen net wat te goed voelbaar. De leefruimte was te klein en er was behoefte aan een extra kamer, zodat de bewoners tegelijk thuis kunnen werken. Het huisje was wel licht, maar er was nauwelijks uitzicht. En het dakterras lag wat verborgen


Het nieuwe huis opent zich naar buiten, naar het erf op het dak. Het sluit zich wat meer af voor de drukte van de straat en houdt het klimaat beter buiten. De leefruimte is gegroeid en een grote glazenpui opent het huis voor een zee van licht en eindeloze wolkenpartijen. Zo hebben we licht, leefruimte en privacy gerealiseerd in een eigenwijs en ruimtelijk volume. Boven de stad en er tegelijk middenin. Een verborgen plek, persoonlijk en idyllisch.


DOORSNEDE OUD

DOORSNEDE NIEUW

Het huis staat bovenop een magazijn. Het dak van het magazijn is het nieuwe maaiveld met een daktuin en een dakterras als basis. Op dat nieuwe maaiveld staat de dakwoning, een rank volume met een karakteristieke kap van anderhalve verdieping hoog.


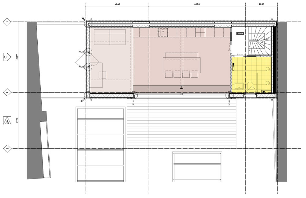
Binnen is de hoge ruimte zo open mogelijk gehouden door de slaapkamer en de studeerkamer als losse volumes in het huis te hangen. De open vide en het raampje in de slaapkamer zorgen ervoor dat alle ruimtes met elkaar in verbinding staan.


Centraal in het hoge gedeelte staat de keuken, met aan weerszijden meer intieme plekken: een eetplek onder de slaapkamer en een zitplek onder de studeerkamer. Het huis opent zich naar de daktuin met een kamerbrede schuifpui. De dakramen vormen kaders naar de oude stad, je ziet de toren van de watergasfabriek, de torens van de Marekerk en Hartebrugkerk en woningen uit allerlei periodes.


PLATTEGROND WOONVERDIEPING


PLATTEGROND SLAAPVERDIEPING

Zowel in materiaalkeuzes als in de installaties heeft duurzaamheid een grote rol gespeeld. Het huis is geïsoleerd met het super duurzame isovlas en geheel van houtskeletbouw opgebouwd. De strakke afwerking in duurzaam hout laat het volume nog helderder spreken, de lange lariks latten banadrukken de ranke vorm van het huis. De installatie is geheel voorbereid op gasloos, gericht op het zuiden liggen 12 zonnepanelen.



De Leidse Stadsfotograaf Leonie van der Helm portretteerde Pepijn en Tijs en sprak met ze over de betekenis van ‘thuis’. Over wonen midden in de stad, en het nieuwe perspectief op hun omgeving die ze door de verbouwing gekregen hebben. ‘In het huis van de theatermakers komt de stad binnen als schilderijtjes.’ Bekijk hier het hele artikel.
CREDITS
OPDRACHTGEVER
PARTICULIER
PROGRAMMA
WONEN EN WERKEN
PROJECTARCHITECT
PATRICK COLLY
AANNEMER
VAN DER LEE & VAN DER HAVEN
MEUBELS
DE JONGENS VAN DE WIT
FOTOGRAFIE
MARCEL VAN DER BURG & ZIJDEKWARTIER
STATUS
OPGELEVERD
ZIJDEKWARTIER ARCHITECTEN